Unter der Linde
Open project competition for new housing with an emphasis on community and social spaces in Pratteln (CH), 2025
in collaboration with Alexander Johnsson
→ more information
Offener Projektwettbewerb für Wohnungsbau mit Schwerpunkt auf Gemeinschaft und soziale Räume in Pratteln, 2025
in Zusammenarbeit mit Alexander Johnsson
→ mehr Information
Unter der Linde
Place: Pratteln, Switzerland
Year: 2025
Program: Housing
Status: Open competition
Collaboration with Alexander Johnsson
The design responds to the unique character of the site: a lush garden as a green oasis and the robust existing building. A new building is carefully positioned between the lindens to the north and the slope to the south.
The linden tree is preserved as a historic landmark and forms the center of a new neighborhood square, connecting the buildings. The existing garden is partially opened to the public and serves as a shared resource for the neighborhood.
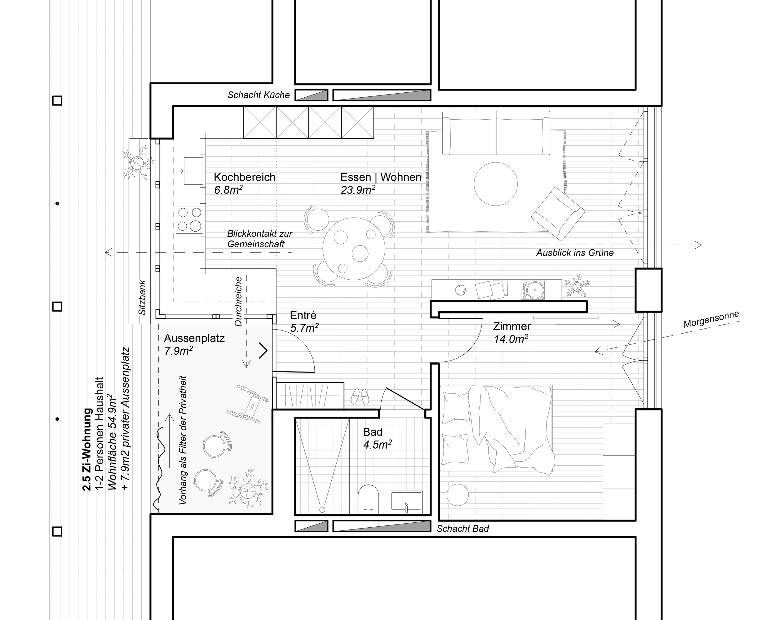
The existing residential building is preserved and carefully adapted to accommodate three accessible apartments. By further developing the existing structure, a harmonious dialogue between old and new is created, giving the site continuity and identity. The new building offers flexible apartments – from compact 2.5-room units to generous 5-room apartments under a pitched roof in a timber-framed construction. West-facing galleries extend the garden to the apartment entrances and provide private niches for relaxation or planting.
Unter der Linde
Ort: Pratteln, Schweiz
Jahr: 2025
Programm: Wohnen
Status: Offener Projektwettbewerb
In Zusammenarbeit mit Alexander Johnsson
Der Entwurf orientiert sich am einzigartigen Charakter des Ortes: dem üppigen Garten als grüne Oase und dem robusten Bestandsgebäude. Ein neuer Baukörper fügt sich behutsam zwischen die Linden im Norden und den Abhang im Süden ein.
Die Linde bleibt als historisches Wahrzeichen erhalten und bildet das Zentrum eines neuen Nachbarschaftsplatzes, der die Gebäude verbindet. Der bestehende Garten wird teilweise öffentlich zugänglich und als gemeinsame Ressource für das Quartier nutzbar.
Das Bestandswohnhaus wird erhalten und behutsam für drei barrierefreie Wohnungen umgebaut. Durch die Weiterentwicklung der bestehenden Struktur entsteht ein harmonisches Zusammenspiel von Alt und Neu, das dem Ort Kontinuität und Identität verleiht.
Der Neubau bietet flexible Wohnungen in Holzbauweise – von kompakten 2,5-Zimmer-Wohnungen bis zu großzügigen 5-Zimmer-Wohnungen unter dem Satteldach. Die westlich ausgerichteten Laubengänge verlängern den Garten bis zu den Wohnungseingängen und schaffen private Nischen zum Entspannen oder Bepflanzen.
